产品分类
PRODUCT CENTER产品规格更多
| 产品 | 规格 |
|---|---|
| 二波板 | 4320*310*85*3/4 |
| 三波板 | 4320*506*85*3/4 |
| 圆立柱 | 直径140/114*4.5 |
| 方立柱 | 130*130*6*2540 |
| 防阻块 | 196*178*200*3/4.5 |
| 托 架 | 70*300*4/4.5 |
| 柱 帽 | 140/114适配 |
| 螺 栓 | M16*35/45/170 |
| 方垫片 | 76*44*4 |
| 单端头 | R160*3/4 |
点击数:3462025-09-05 15:42:50 来源: 波形护栏|护栏板价格|高速护栏板厂家-冠县华安交通
高速公路路侧A级两种波形护栏的构造和尺寸应符合以下规定:
(以下内容标准截取自——公路交通安全设施设计细则(JTGTD81-2017)
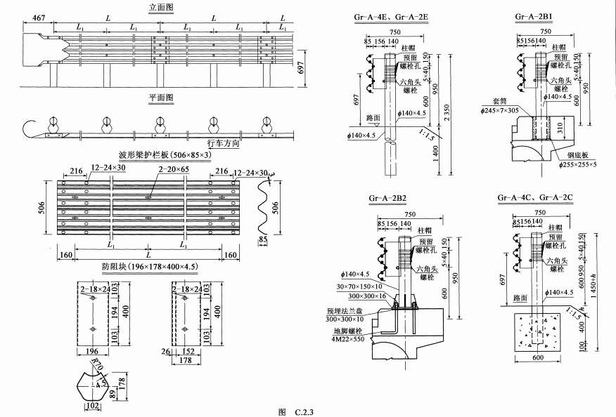
三(A)级a型波形梁护栏一般构造示例如图(双胞胎防阻块式):
三(A)级a型波形梁护栏规格参数及适用范围:
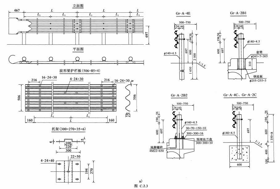
三(A)级b型波形梁护栏一般构造示例如图(三波大托架式):
三(A)级b型波形梁护栏规格参数及适用范围:
三(A)级波形梁护栏碰撞试验变形值:
三(A)级波形梁护栏a型和b型两种类型的路肩宽度占用距离:
A级a型护栏的路肩宽度占用距离为38.1cm(即85+156+140mm),A级b型护栏的路肩宽度占用距离为26.4cm(即124+140mm)。
三波A级波形护栏造价成本比较如图:

两种形式三(A)级波形梁护栏可吸收的碰撞能量同为160KJ,在实际应用中可以根据土路肩宽度、护栏变形、资金成本等情况选用。

