产品分类
PRODUCT CENTER产品规格更多
| 产品 | 规格 |
|---|---|
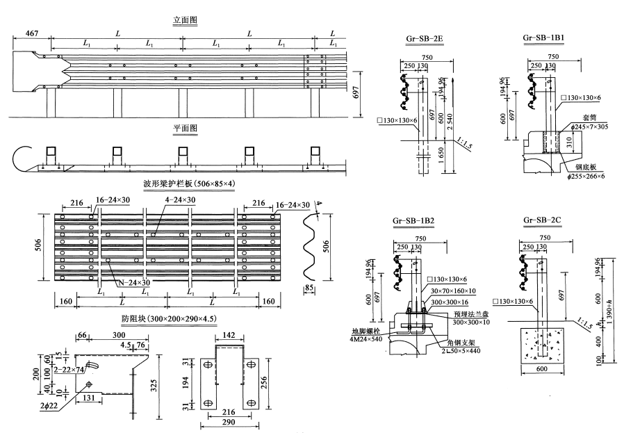
| 二波板 | 4320*310*85*3/4 |
| 三波板 | 4320*506*85*3/4 |
| 圆立柱 | 直径140/114*4.5 |
| 方立柱 | 130*130*6*2540 |
| 防阻块 | 196*178*200*3/4.5 |
| 托 架 | 70*300*4/4.5 |
| 柱 帽 | 140/114适配 |
| 螺 栓 | M16*35/45/170 |
| 方垫片 | 76*44*4 |
| 单端头 | R160*3/4 |
点击数:1972025-09-05 15:55:23 来源: 波形护栏|护栏板价格|高速护栏板厂家-冠县华安交通
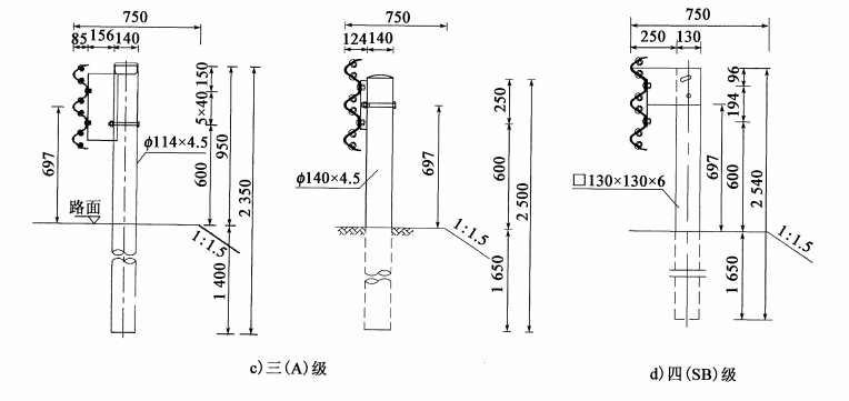
高速公路、一级公路等快速路多使三波形A级或SB级等高强度的波形护栏,A级波形护栏之前已经分析过,今天咱们一起来看看关于三波SB级路侧波形护栏的设计规范细则是怎样的吧!
(以下内容标准截取自——公路交通安全设施设计细则(JTGTD81-2017)
四(SB)级波形梁护栏结构构造与规格尺寸:
四(SB)级路侧波形梁护栏一般构造示例如图所示:
四(SB)级路侧波形梁护栏参数和使用该范围如下:
这两种等级的波形护栏主要的区别在于外形及可吸收碰撞能量的不同。
三波A级波形护栏采用的是直径140的圆管立柱,根据路肩宽度占用距离分别采用了双胞胎防阻块和三波托架两种不同的连接方式,但它们的可吸收碰撞能量都是160KJ;
三波SB级采用的是130*130的方管立柱,结合飞机翅防阻块,380mm的路肩宽度占用距离和280KJ的可吸收碰撞能量也在一定程度上决定了SB级波形护栏的使用范围。
路侧三波A级护栏与SB级护栏横断面布置图:
实物参考图如下:

